X

Специальное предложение

Хотите зафиксировать цену? Заключайте договор, вносите авансовый платеж 10% и Вы получите сруб по фиксированной цене.


Построенные дома и бани в группе ВК, по ссылке - Срубы | дома | бани | из Карелии

Собственное производство
Москва. Мытищи. ул. Ярмарочная 4в. (Мытищинская ярмарка).
Карелия, Петрозаводск, Шуйское шоссе 20,
Санкт-Петербург, Мурманское шоссе, 12-й километр (Мега Дыбенко)

 

 

Понравился проект? Оформите заказ

Проект № Д-64

Цена
550`000 рублей
Размер
5.4*7.4м
Планы и фотографии проекта

Характеристики сруба 

 

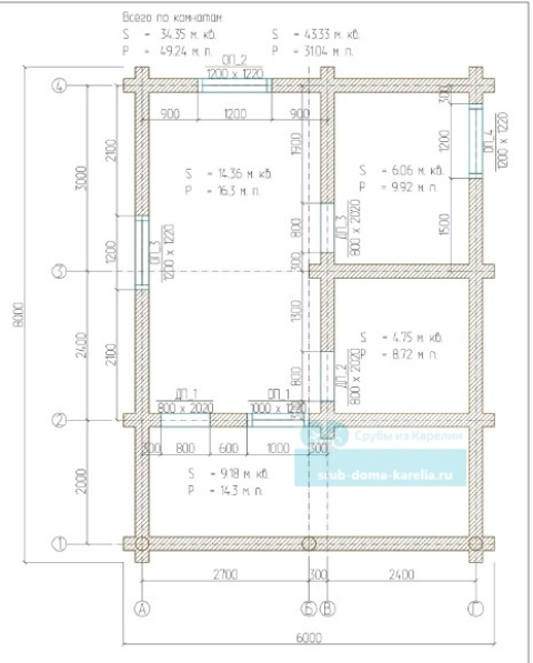
Размер сруба 

 5.4х7.4

Общая площадь сруба

34.35м²

Цена сруба чаша:

550 000 руб

 

Общая площадь – 34.35м2

Описание 

  • Сруб дома из оцилиндрованного бревна
  • Диаметр бревна – 22 см

В стоимость входит

  • Доска на стропильную систему 
  • Проектная документация